千葉市稲毛区 賃貸店舗・事務所

千葉市稲毛区 賃貸店舗・事務所

お問い合わせ番号:f11146-130054
賃貸店舗・事務所
千葉市稲毛区小仲台2
JR 総武本線 稲毛駅 ( 徒歩 5分 )
賃料 77.00万円
(坪単価:1.71万円)
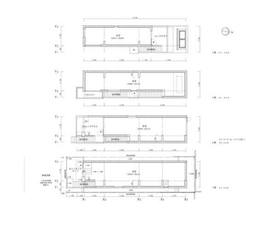
1Fから3F貸店舗・事務所 2025年7月頃完成予定 業種はご相談ください スケルトン渡し
☆☆☆東京都・神奈川県・千葉県のテナント店舗をお探しの方・貸したい方はテンポス(株)までお問い合わせください☆彡★英語対応スタッフ在中★
管理費 20,000円
保証金
解約引
-
-
敷金
礼金
更新料
3ヶ月
1ヶ月
1.5ヶ月
建物/専有
面積
149.13m2
(45.11坪)
土地面積 90.90m2
(27.49坪)
築年月 2025年7月
(令和7年7月)
駐車場 所在階 1-3階 地上階数
地下階数
4階
-
構造 鉄筋コンクリート造(RC)
用途地域 第一種住居地域
現況 未完成
入居/引渡 相談 
契約期間 2年
取引 仲介
物件登録日 2024年10月21日
情報更新日 2025年10月20日
 賃貸保証:加入要 初回保証料 月額賃料の100% 利用駅1:京成千葉線 京成稲毛 徒歩14分 利用駅2:JR総武・中央緩行線 西千葉 徒歩27分
千葉市稲毛区 賃貸店舗・事務所 のことならお気軽にご相談ください。
テナントショップ木更津
TEL:0438-22-5833
営業時間:9:00~18:00
定休日 :日曜日
メールでのお問い合わせ

お電話の場合は「テナントショップを見ました。物件番号は < f11146-130054 > です」と伝えていただくとスムーズにお応えできます。

  • 買う
  • 売買物件を探す
  • 収益物件を探す
  • 借りる
  • テナント・貸店舗を探す
  • オフィス・事務所を探す
  • 倉庫・工場を探す
  • 貸土地・借地を探す
  • 居抜き物件
  • 依頼する
  • 新着物件!未公開物件!地元に詳しい!
  • 物件リクエスト
検索する
スペース区切りの複合語句検索はできません

  • スマホで物件検索
  • 実績紹介
  • 物件管理
  • 会社概要・アクセス